871 North Bellaire Street
Have you ever noticed that old brick building sitting quietly among all the new development at 9+Co? That’s the former Nurses Dorm, a 25,000-square-foot historic structure now being carefully restored and reimagined for modern use.
The project aims to honor its legacy while transforming it into a space the community can enjoy as part of the ongoing 9+Co vision.
The Nurses Dorm was added to the National Register of Historic Places in 2024 for its architectural and cultural importance. Designed in the Colonial Revival style by architects Maurice Biscoe and the Fisher brothers, it is the last remaining structure from the 1924 University of Colorado Health Sciences Center campus.
For decades, it served as a residence for women studying and working at the University’s School of Nursing.
The building also carries a remarkable social history.
During World War II, it became a haven for Japanese-American nursing students transferred from the University of Washington under the leadership of Henrietta Adams Loughran. At a time of widespread discrimination, this building offered safety, education, and opportunity, earning recognition for its role in both women’s and Asian American history.
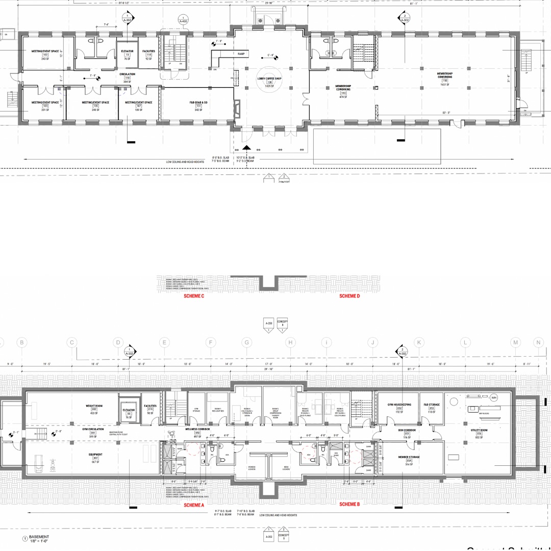
Now, after years of vacancy, the dormitory a concept plan was submitted to transform the building into a mix of wellness and workspace uses, including private and medical offices, fitness and recovery areas, co-working space, and food and beverage offerings.
The surrounding 1.1-acre site will also see upgraded landscaping, parking, and pedestrian connections to better integrate with the neighborhood.
While a recent city notice called out maintenance issues typical of a long-unused site, restoration is already underway. The exterior will be preserved according to historic standards, while the interior receives all-new systems and finishes.
With permits planned for spring 2026 and construction expected that fall, the Nurses Dorm will soon rejoin the growing rhythm of 9+Co, and if you’ve looked across the street lately, you can see that a new chapter is about to unfold.
