1667 Erie Street
A revised concept plan shows the proposed LoHi hotel at Erie Street, Tejon Street, and 17th Street has been scaled back in size and simplified in design. The site sits directly across from Hirshorn Park and steps from neighborhood staples Postino and Kawa Ni, making it one of the area’s most visible triangular parcels.
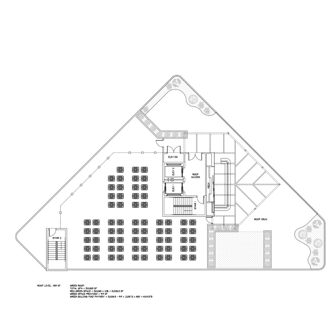
The earlier 2024 concept called for a four story hotel with 70 rooms and 18 parking spaces. The new November 2025 filing reduces the massing significantly. The project, submitted by architect Rachel Fox of RealArchitecture for owner BP Land, now outlines a three story building with 69 keys and a total area of 30k square feet. The design takes advantage of the steep grade by placing a basement level entry on Erie Street with three levels of guestrooms above. The interior program includes a lobby, bar and lounge, back of house operations, and rooftop access with guest amenities that overlook the surrounding LoHi blocks.
The updated structure is shaped tightly to the triangular lot with a continuous street facing facade and a curved corner at the south point. Due to the small parcel and challenging topography, the new plan removes all on site parking. Instead, the submission proposes two on street loading spaces for guest drop off, deliveries, and service functions. Sidewalks and tree lawns remain unchanged, and the request for a small right of way vacation at the north edge of the site continues as part of the review.
The latest concept marks a more modest and realistic direction for the high profile LoHi location while keeping the vision for a boutique hotel active in one of the neighborhood’s most recognizable pockets
